Éú²ú½¨Éè
Ë®º¦ÊÇú¿óÖØ´óÔÖÄÑÖ®Ò»¡£½üÆÚ£¬ºú¼ÒºÓ¿óÀÖ³ÉÊ©¹¤402104±¸²ÉÊÂÈËÇé´ó¿Ú¾¶Éî¿×ÅÅË®Á¢¿×£¬³¹µ×½â¾öÁË402ÅÌÇøÅÅË®ÄÑÌ⣬±ê¼Ç×Å¿ó¾®Ë®º¦ÖÎÀí´Ó±»¶¯Ó¦¶ÔÏòÊÂǰԤ·Àת±ä£¬°´ÏÂÁËË®º¦ÖÎÀíµÄ¡°¿ì½ø¼ü¡±¡£
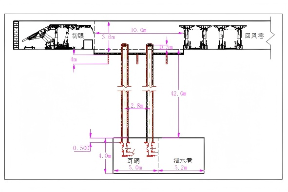
¾ÝÏàʶ£¬¸Ã¿ó402104±¸²ÉÊÂÈËÇ飬Î÷²àºÍ±±²à¾ùΪÀϿջýË®Çø£¬µ¼Ö´ó×ÚÀÏ¿ÕË®»ãÁ÷ÖÁÊÂÈËÇéÉÏÓç½Ç£¬Ó¿Ë®Á¿¸ß´ï300m?/h£¬ÔÓеÄÅÅˮϵͳÒÑÎÞ·¨Öª×ãÇå¾²Éú²úÐèÇó£¬ÑÏÖØÍþв¿ó¾®Çå¾²Éú²ú¡£Îª´Ë£¬¸Ã¿ó×éÖ¯Ïà¹ØÊÖÒÕÖ°Ô±ÕÙ¿ª×¨Ìâ×êÑлᣬ¸÷×¨ÒµÖ°Ô±Î§ÈÆÏÖ³¡×÷ÒµÏÖʵ¶Ô±£´æµÄΣº¦µã¡¢ÊÖÒÕ²½·¥¡¢Ê©¹¤¹¤ÒյȾÙÐÐÁËϵͳÌÖÂÛÑо¿£¬Æ¾Ö¤¡°ÇåÎÛÊèÉ¢¡¢Àú³Ì¹Ü¿Ø¡¢×ۺϷÀÖΡ±µÄÔÔò£¬×îÖÕ¾öÒéʵÑé´ó¿Ú¾¶Éî¿×+µ×°åйˮÏïÅÅË®ÊÖÒÕ¡£

ÃæÁÙµØÖÊÌõ¼þÖØ´ó¡¢Ê©¹¤¿Õ¼äÏÁÕ¡¢¿×Öкã¾ÃÁÜË®¡¢×ê¿×Ëú¿×µÈÊÖÒÕÄÑÌ⡣ʩ¹¤Àú³ÌÖУ¬¸Ã¿ó½ÓÄÉÕýÏò×ê½ø¡¢·´ÏòÀ©¿×Ê©¹¤ÊÖÒÕ£¬Ê©¹¤Ö±¾¶800mm¡¢Éî¶È42mµÄÁ½¸öÅÅË®Á¢¿×£¬È·±£ÁË×ê¿×µÄ±ÊÖ±¶ÈºÍ³É¿×ÖÊÁ¿£¬²¢Í¨¹ýÅÅË®Á¢¿×½«»ýË®ÒýÈë402104йˮÏÐγɸßЧµÄÅÅˮͨµÀ£¬×î´óÅÅË®ÄÜÁ¦1000m?/h£¬ÓÐÓýµµÍÁË¿ó¾®Ë®º¦Î£º¦¡£
¡°ÔÚÅÅË®¹Ü·װÖÃÀú³ÌÖУ¬ÃæÁٵزãÑÒÐÔת±ä¡¢ºéÁ÷³åÏ´¶øµ¼ÖµÄËú¿×¡¢¶Â¿×ÎÊÌâ¡£ÎÒÃÇÏêϸ¼Í¼ÿһ´Î·ºÆðµÄ״̬£¬ÉîÈëÆÊÎöÎÊÌⱬ·¢µÄÔµ¹ÊÔÓÉ£¬²¢ÊµÊ±¾ÙÐÐÑÐÅУ¬ÔÚһֱʵÑéÓë̽Ë÷ÖУ¬¸ßÖÊÁ¿Íê³ÉÁ˹Ü·װÖÃʹÃü¡£¡±¸Ã¿óµØ²â·ÀÖÎË®²¿ÈÏÕæÈËÏÈÈݵÀ¡£
Ë®º¦·ÀÖÎÊÂÇéÈÎÖØµÀÔ¶¡£¸Ã¿ó½«¼ÌÐøÔÚÒ»Á¬ÁÜË®Ìõ¼þÏÂ×ê¿×»·Ðοռä×¢½¬·â¶Â·½Ãæ¹¥¼á¿ËÄÑ¡¢Á¢ÒìÒªÁ죬ÔöÇ¿¿ó¾®Ó¿Ë®¼ÍÂÉ¡¢³äË®ÒòËØÆÊÎö¡¢Í»Ë®»úÀíÑо¿£¬Ò»Ö±ÍƽøË®º¦·ÀÖÎÊÖÒÕÁ¢Ò죬ÖúÁ¦¿ó¾®ÂÌÉ«¡¢¸ßЧ¡¢Çå¾²Éú³¤¡££¨ÌïÀÚ º«¶¨·æ£©
±à¼£º´ïÎľê


